No Results Found
Orion Tuscan 1-Bed/1-bath






We ship within the continental US - not Alaska, Hawaii, or other island territories
What’s Included With Your Steel Frame Kit:
- Cold-Formed Steel Skeleton: Complete frame; wall panels, beams, trusses, floor joists (if applicable), fasteners, and hardware for you to erect your skeleton.
- Snapsheet: Location of snap lines for wall panel placement
- Exterior Views: Exterior view of the residence with other miscellaneous detail
- Cross Section: A vertical cutaway view of the house from roof to foundation showing details of framing
- Schematics: Detailed plans, drawn to 1/4’’ scale for each level showing room dimensions, wall
partitions, windows, etc. as well as the location of electrical outlets and switches - Materials Shopping List: Complete and comprehensive list of the materials you'll need to finish your home. Take this list directly to Home Depot, where with the help of an expert, you can choose the colors, grades, and styles that best fit your taste and truly make the home your own.
Your structural steel skeleton comes detailed to meet the requirements of the latest adopted version of the International Building Code (IBC) and our notes and details pages outline all the elements applicable to the design of your home.
Compliance with further standards may need to be added by you to your plan set, subject to your state and county building codes. That step is done locally by you or your contractor. For example: site plan and utility plan may be required.
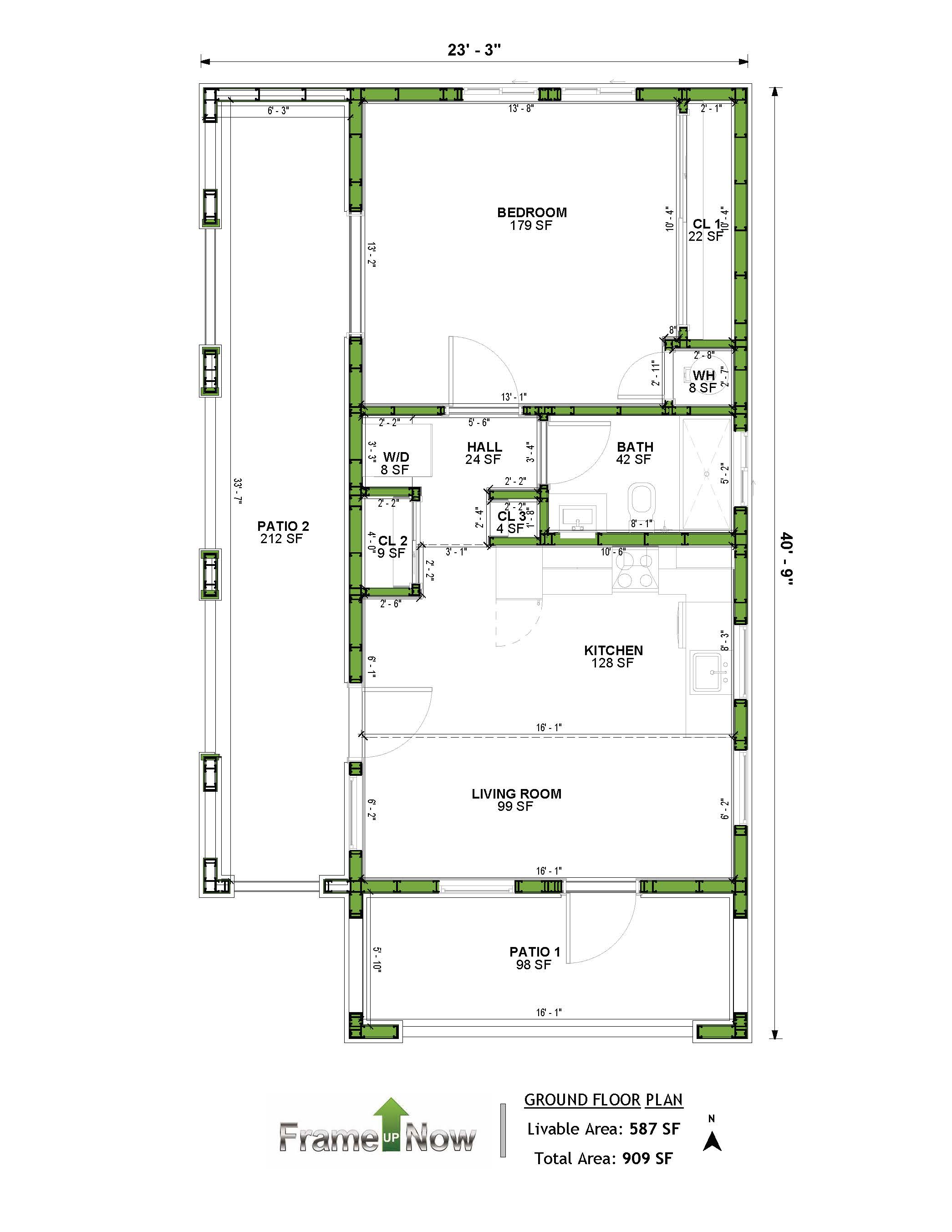
Floor Plan

Framing Specs & Features For Single Family Home
Bedrooms :
1
Baths :
1
Kitchen
Covered Front Porch
Covered Side Porch
Easy Build
Depth: 40'-9"
Width: 23'-3"
Height: 12'-0"
Livable Area: 587 SF
Total Area Under Roof: 909 SF
Lower Ceiling: 8'-0"
Upper Ceiling: 11'-0"
Pitch: 4/12
Cold-Formed Steel (CFS)
Trusses Included
Designed for slab foundation (slab not included)
Upgrade to floor joists available
Inquiry
Can’t make up your mind yet? Give us a message for all your questions regarding BUNGALOW-48-646 and we will get back to you shortly.


























.jpg)


























-p-500.jpg)

-p-500.jpg)



















-p-500.jpg)





















-p-500.jpg)























.jpeg)








